@新北市基隆瑞芳廚具工廠直營 廚具推薦 L字型廚房設計 101時尚系統廚具設計 韓國進口樂天(原三星)人造石 作品-瑞芳黎公館-韓國進口樂天(原三星)人造石+心板桶身+5面結晶鋼烤門板
凸顯個人
獨特特質
檯面:樂天(原三星)人造石
幸福空間廚房設計500 方案產品價格很優惠,雖然不是高單價,
品味廚房款式造型時尚卻不會退流行
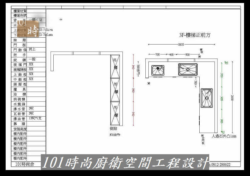
廚房設計3D.尺寸圖
廚具工廠直營-廚具施工過程
歐化廚具安裝1天即可完成,
歐化廚具在工廠施工時間約8-10個工作天
廚具安裝過程
喜歡接近大自然把家架設一個別有風味的避風港
歐式廚具上櫃
歐式廚具下櫃
讓記憶停留在每一個美好的瞬間
左側刀具架+右側五聯鉤
不鏽鋼單水槽B1-303,F1-740,U1-830B
不鏽鋼單水槽B1-303,F1-740,U1-830B
不鏽鋼單水槽B1-303,F1-740,U1-830B
不鏽鋼單水槽B1-303,F1-740,U1-830B
不鏽鋼單水槽B1-303,F1-740,U1-830B
不鏽鋼單水槽B1-303,F1-740,U1-830B
順著新感覺走
讓101時尚廚房溫暖你的家
101 Style House Design
101時尚舍廚房空間設計

林小姐的用心及師傅的認真是有目共睹的,好不容易决定款式,因每每介绍都各有特色,林小姐的分析表明讓我感到温馨,谢谢你!